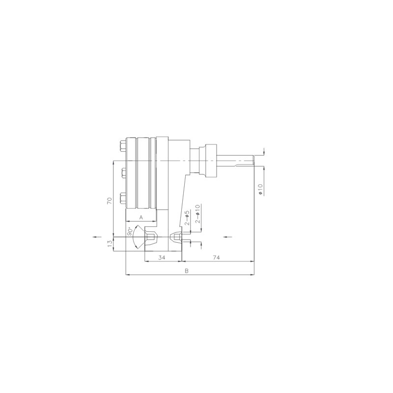
TC-RB1

Image